Modulhaus Huberto
Sonstige Unterkünfte Merkliste aufrufen merken-
Modulhaus Huberto©

Ihr Aufenthalt
Loftartige Großzügigkeit, ...
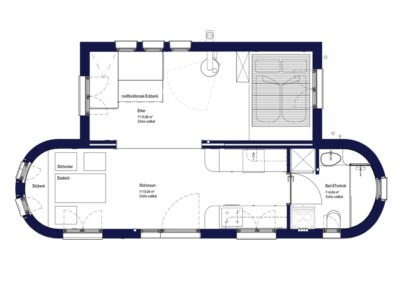
Ein offener Kamin, der romantisch knistert, eine große Küche mit umfangreichem Selbstversorger-Paket: Was will man mehr! Huberto ist neben Luna und Ronja der Dritte im Bunde des Steinapiesting-Ensembles. Mit 36 m2 Wohnfläche ist er der große Bruder in der Runde und bietet mit einem Doppelbett sowie maßgeschreinertem Schlafsofa ausreichend Platz für Familien mit 2-4 Personen, die ein Leben auf das Wesentliche reduziert ausprobieren möchten. Eine gemütliche Küche, die verwöhnende Regendusche und ein einladender Außenbereich zwischen Luna und Ronja machen Huberto zum Entspannungsort!
Huberto bietet dir außerdem die Möglichkeit, die WOHNWAGON-Autarkie-Ausstattung zu testen: Die große Solaranlagen in Verbindung mit Infrarotheizung und Holzofen erlaubt einen sehr hohen Grad an nachhaltiger Unabhängigkeit in Sachen Wärme und Strom. Mit der Bio-Toilette wirst du zum Wasserspar-Pionier. Das Gründach trägt zudem zu einer hervorragenden Isolierung und Innenraumtemperatur zu jeder Jahreszeit bei.
Gebaut ist Huberto als Vollholz-Modul „unten ohne“: 2 Elemente wurden auf das Grundstück verkrant und stehen auf Schraubfundamenten, um einen tieferen Einstieg zu ermöglichen sowie die Ressourcen für das Fahrgestellt einzusparen. So kommt das Tiny House ohne Beton aus und bleibt komplett rückbaubar. Dank der natürlichen Baustoffe (Holz, Schafwolle, Lehmputz) darfst du dich auf einen richtig erholsamen Schlaf freuen: Dich umgeben nur gute Dinge!
Ein Aufenthalt in Huberto soll so zu nachhaltigen Lebensstilen inspirieren und einen gemütlichen Ort schaffen — zum Abschalten und Entspannen, oder auch zum nachhaltigen Probewohnen!
Huberto
• 36 m² mit großem Erker
• für 1-4 Personen
• in einem ruhigen Tal von Gutenstein neben den Wohnwagons Ronja und Luna
• Doppelbett + Eckbank (ausziehbar zum Doppelbett)
• Bad mit Dusche, Trenntoilette und Waschbecken
• Küchenbereich mit Herd, Spüle, Kühlschrank
• PV-Anlage, Holzofen
• kein W-LAN
• Haustiere dürfen leider nicht mitkommen. Wir bitten um dein Verständnis.
Zur Grundausstattung unseres Wohnwagons gehören:
• Bettwäsche & Handtücher
• Shampoo & Duschgel
• Brennholz
• inspirierender Lesestoff
• Koch-Geschirr
• Tee, Kaffee, Kakao, Saft
• Butter, Marmelade
• Müsli, Cornflakes, Rosinen
• Pasta, Reis, Essig, Öl, Gewürze
Aus unseren Wasserhähnen fließt ausschließlich bestes, frisches Trinkwasser aus den Gutensteiner Quellen.








